Barrierefreies Bad mit Haltegriffen und bodengleicher Dusche

DIN 18040 für Bäder: Planungsgrundlagen und Maße

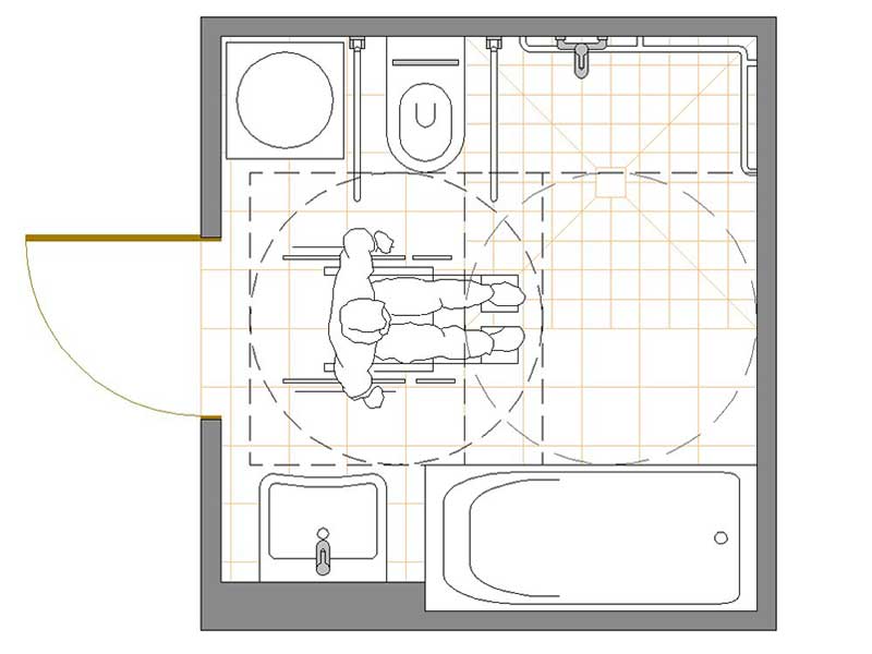
Die DIN 18040-1 und 18040-2 definieren Anforderungen für barrierefreie Sanitärräume in öffentlichen Gebäuden und Wohnungen. Erfahren Sie, welche Maße, Bewegungsflächen und Ausstattungen normgerecht sind.

Grundriss barrierefreies Bad mit bodengleicher Dusche

Bodengleiche Duschen: Maße, Konstruktion und Abläufe

Bodengleiche Duschen sind das Herzstück eines barrierefreien Bades. Lernen Sie die optimalen Maße (120×120 cm bis 150×150 cm), Gefälleplanung und Ablaufarten kennen.

WC Bereich mit optimalen Höhen für Rollstuhlfahrer

WC-Höhen und Bewegungsflächen nach DIN

Die richtige WC-Sitzhöhe ist entscheidend für Transfer und Komfort. Erfahren Sie, warum 46-48 cm für Rollstuhlnutzung optimal sind und welche Bewegungsflächen benötigt werden.

Unterfahrbarer Waschtisch für Rollstuhlfahrer

Waschtisch-Anpassungen: Höhe und Unterfahrbarkeit

Der Waschbereich muss funktional und sicher sein. Erfahren Sie, wie Sie Höhen, Unterfahrbarkeit, Armaturen und Hygiene-Accessoires optimal planen.

Rutschfeste Bodenbeläge im Bad

Rutschfeste Bodenbeläge: R-Klassen und A/B/C Bewertung

Die richtige Rutschhemmung ist essentiell für die Sicherheit. Lernen Sie die Unterschiede zwischen R-Klassen (R 9-R 13) und Barfuß-Bewertungsgruppen (A/B/C) kennen.

Kosten und Förderung für barrierefreie Bäder

Kosten und Förderung: KfW 159, Pflegekasse und mehr

Barrierefreiheit ist eine Investition. Erfahren Sie, welche Kosten auf Sie zukommen und welche Fördermöglichkeiten (KfW, Pflegekasse, Steuer) Ihnen zur Verfügung stehen.

Notrufanlagen im barrierefreien Bad

Notrufanlagen und Sicherheitssysteme für das Bad

Sicherheit ist ein System aus sichtbaren, tastbaren und technischen Elementen. Erfahren Sie über Notrufanlagen nach DIN VDE 0834-1 und Sicherheitsbeleuchtung.